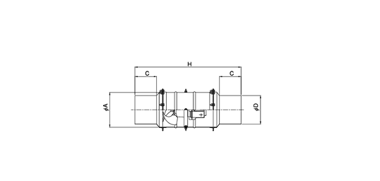
MS型>外形寸法表(ガルバリウム鋼板製を標準仕様)
(単位 mm)
| 型式 | φD | φA | C | H | 概算重量 kg |
| MSL-200S-200 | 198 | 240 | 150 | 736 | 15 |
| MS-250S-200 | 198 | 305 | 150 | 771 | 15 |
| MS-250S-250 | 246 | ||||
| MS-300S-300 | 296 | 368 | 140 | 771 | 20 |
| MS-300T-300 | |||||
| MS-400T-400 | 396 | 450 | 145 | 850 | 30 |
| MS-500T-500 | 496 | 550 | 145 | 840 | 40 |
| MS-600T-600 | 596 | 650 | 145 | 930 | 70 |
MS型>特性表
(風量、騒音値はフリーエアー)
| 型式 | 羽根径 (φmm) |
電圧 | 公称出力 (w) |
極数 (P) |
風量(m3/h) | 騒音(dB) | ブレーカー選定電流 参考値(A) |
|||
| 50Hz | 60Hz | 50Hz | 60Hz | 50Hz | 60Hz | |||||
| MSL-200S-200 | 200 | 単相 100V | 15 | 4 | 454 | 538 | 34 | 37 | 0.71 | 0.68 |
| MS-250S-200 | 250 | 単相 100V | 25 | 4 | 386 | 430 | 37 | 40 | 0.96 | 1.22 |
| MS-250S-250 | 785 | 905 | ||||||||
| MS-300S-300 | 300 | 単相 100V | 50 | 4 | 1000 | 1180 | 39 | 42 | 1.46 | 1.70 |
| MS-300T-300 | 三相 200V | 1030 | 1200 | 0.54 | 0.68 | |||||
| MS-400T-400 | 400 | 三相 200V | 200 | 4 | 2690 | 3110 | 49 | 53 | 1.95 | 1.95 |
| MS-500T-500 | 500 | 三相 200V | 200 | 6 | 3840 | 4590 | 46 | 49.5 | 1.89 | 2.16 |
| MS-600T-600 | 600 | 三相 200V | 750 | 6 | 8159 | 9800 | 55 | 59.5 | 5.55 | 6.15 |
適応基準(危険場所に対する防爆構造の選定)
(注)○印=適するもの、×印=適さないもの。
| 業種 | 危険場所 | 状況 | 適用モーター型式 | |
| 耐圧 | 安全増 | |||
|
・硫安製造業 |
1種場所 | 爆発性ガスが常時発生・蓄積しており、危険となる恐れのある場所。 |
○ | × |
| 2種場所 | 爆発性ガスや可燃性液体を封じた容器、設備が事故の為破損もしくは操作を誤った場合にのみ、漏出し危険の生じる場所。 |
○ | ○ | |
(注)d2G4防爆構造で使用できない場所は、左表より爆発等級3発火度G5のガス発生場所です。すなわち水性ガス、水素、アセチレン、二硫化炭素は適用できません。
爆発性ガスの分類
| 発火度 | G1 | G2 | G3 | G4 | G5 |
| 爆発等級 | |||||
| 1 | アセトン |
エタノール |
ガソリン |
アセトアルデヒト |
|
| 2 | 炭酸ガス |
エチレン |
|||
| 3 | 水素 |
アセチレン |
二硫化炭素 |
発火度の分類
| 発火度 | 発火点の範囲 |
| G1 | 450℃を超えるもの |
| G2 | 300℃を超え450℃以下 |
| G3 | 200℃を超え350℃以下 |
| G4 | 135℃を超え200℃以下 |
| G5 | 100℃を超え135℃以下 |


